Centrala termica Immergas Victrix Tera V2 24/28 kW
Centrala termică Immergas Victrix Tera V2 24/28 kW este alegerea ideală pentru cei care pun preț pe eficiența energetică. Versiunea V2 aduce o interfață modernizată, un design mai compact și, cel mai important, o eficiență sezonieră crescută la 94%, ceea ce reduce consumul anual de gaz comparativ cu modelul anterior Victrix Tera. În plus, consumul redus în stand-by de sub 6W contribuie la economii suplimentare la electricitate. Cu o putere de 24 kW pentru încălzire și 28 kW pentru apă caldă menajeră, este soluția ideală pentru locuințe de până la 180 m², oferind un debit de apă caldă de 14.1 l/min.
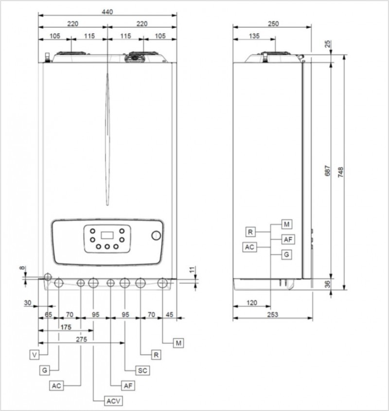
Unul dintre cele mai mari avantaje ale centralei termice Immergas Victrix Tera V2 24/28 kW este designul său ultra-compact, fiind una dintre cele mai mici centrale de pe piață. Datorită adâncimii de doar 25.6 cm, poate fi instalată în interiorul mobilierului de bucătărie sau în spații tehnice înguste. Acest lucru o face perfectă pentru apartamente de bloc dar și pentru case noi unde spațiul este limitat. Este potrivită atât pentru instalații noi, cât și ca înlocuitor pentru centralele vechi, conexiunile standard făcând tranziția de la generațiile anterioare rapidă și fără bătăi de cap.
Confortul în utilizare este un alt punct forte al acestei centrale. Produce instant apă caldă cu un debit generos de 14.1 l/min, suficient pentru o familie de 3-4 persoane și utilizarea simultană a două puncte de consum (ex: duș și chiuvetă bucătărie). Interfața cu display LCD este intuitivă și ușor de folosit, iar cu ajutorul unui termostat wireless, poți controla centrala de oriunde te-ai afla, programând temperaturile și monitorizând funcționarea în timp real. Mai mult, utilizată cu termostatul Immergas SMARTECH sau module de comandă tip CAR V2, centrala poate atinge clasa energetică A+.
Durabilitatea este garantată de materialele premium folosite în construcție. Schimbătorul de căldură din oțel inox de înaltă calitate și pasajele mari de circulație a apei previn colmatarea și asigură o funcționare îndelungată. Întreținerea este simplă datorită designului bine gândit, ceea ce reduce costurile pe termen lung. Totuși, în calitate de specialiști cu experiență în domeniul instalațiilor termice, recomandăm instalarea unui filtru magnetic pe retur pentru a proteja schimbătorul de căldură și a-i asigura o durată de viață mult mai lungă.
În plus, centrala termică Immergas Victrix Tera V2 24/28 kW este o alegere responsabilă pentru mediul înconjurător, deci este o alegere potrivită pentru utilizatori eco-conștienți. Cu emisii foarte reduse de NOx și CO, certificate în Clasa 6 (cea mai bună conform normelor europene actuale), și tehnologia modernă de condensare, contribui la protejarea mediului fără să compromiți confortul termic.
Pentru cei care pun preț pe siguranță, centrala oferă un grad înalt de protecție electrică (IPX5D) și multiple sisteme de siguranță. Fiind produsă de Immergas, un producător cu tradiție în domeniu, ai garanția unui produs de calitate care va funcționa eficient și sigur pentru mulți ani.
Immergas Victrix Tera V2 24/28 kW este alegerea perfectă pentru cei care caută o centrală modernă, eficientă și compactă, care să le ofere confort maxim cu costuri de operare minime, având în același timp grijă de mediul înconjurător.
Centrala termica Immergas Victrix Tera V2 24/28 – Caracteristici
- Aspect Modern: Cu un design elegant, această centrală se potrivește perfect în orice locuință contemporană.
- Performanță Înaltă: Schimbătoarele de căldură INOX asigură o durabilitate și eficiență sporită.
- Interfață Utilizator: Display-ul LCD modernizat facilitează o interacțiune intuitivă cu aparatul.
- Eficiență Sezonală: Cu un randament sezonier de 94%, această centrală setează noi standarde în eficiența energetică.
- Opțiuni de Instalare: O clapetă suplimentară (kit opțional – cod 3.032877) permite racordarea la coșuri de fum sub presiune pozitivă.
- Compatibilitate cu Hidrogen: Pregătită pentru viitor, centrala poate funcționa cu amestecuri de până la 20% hidrogen.
- Vas de Expansiune de 8 Litri: Asigură un sistem hidraulic echilibrat.
Avantaje și Beneficii
- Economii de Cost: Centrala te ajută să economisești pe termen lung, fără a sacrifica confortul.
- Manevrabilitate: Ecranul LCD și butoanele de control sunt concepute pentru o utilizare cât mai simplă.
- Versatilitate în Montaj: Datorită dimensiunilor sale compacte, centrala poate fi instalată în diverse locații, inclusiv în exterior.
- Clasa Ecologică 6: Aceasta este cea mai înaltă clasificare ecologică din Europa, garantând un impact minim asupra mediului.
- Față de competiția directă (ex: Ariston Clas One sau Vaillant ecoTEC), Immergas Victrix Tera V2 se remarcă prin adâncimea de doar 25.6 cm, fiind una dintre cele mai plate centrale din segmentul de 24/28 kW, și prin robustețea schimbătorului de căldură cu pasaje mari, ideal pentru zonele cu apă dură.
Date tehnice centrala termica Immergas Victrix Tera V2 24/28 kW
- Putere utila max. regim incalzire (40/30°C): 26.6 kW
- Putere utila max. regim incalzire (50/30°C): 26.1 kW
- Putere utila max. regim incalzire (80/60°C): 24.1 kW
- Putere utila min. regim incalzire (40/30°C): 4.9 kW
- Putere utila min. regim incalzire (50/30°C): 4.8 kW
- Putere utila min. regim incalzire (80/60°C): 4.3 kW
- Temperatura maxima agent termic: 90 °C
- Domeniu de reglare a temperaturii agentului primar: 20-85 °C
- Presiune maxima circuit incalzire: 3 bar
- Capacitate vas de expansiune circuit de incalzire: 8 l
- Presiune vas de expansiune: 1 bar
- Consum de gaz la Pmax/Pmin cu metan (G20): 2,61 / 0,48 mc/h
- Putere utila max. regim acm: 28.3 kW
- Putere utila min. regim acm: 4.3 kW
- Domeniu de reglare a temperaturii a.c.m.: 30-60 °C
- Debit de acm in serviciu continuu, cu DT = 30 °C: 14.1 l/min
- Debit minim circuit sanitar: 1.5 l/min
- Presiune minima circuit sanitar: 0.3 bar
- Presiune maxima circuit sanitar: 10 bar
- Consum de gaz la Pmax/Pmin cu metan (G20): 3,06 / 0,48 mc/h
- Înălţime: 748 mm
- Lăţime: 440 mm
- Adâncime: 256 mm
- Masa centrala plina: 35.8 kg
- Masa centrala goala: 33.6 kg
Din experiența noastră, un service anual este esențial pentru a menține performanța centralei la un nivel optim. De asemenea, dacă ai o locuință cu o suprafață generoasă, asigură-te că această variantă de putere este adecvată pentru nevoile tale. Un calcul corect al necesarului termic poate face diferența în funcționarea eficientă a sistemului pe termen lung. În general, într-o locuință bine izolată, această centrală Immergas de 24 kW acoperă până la 180 m². Pentru case vechi, neizolate, se recomandă pentru maxim 140 m².
Pentru mai multe modele de centrale termice accesează pagina categoriei. Poți adăuga și un termostat de ambient sau un filtru pentru centrală.






















GEORGE C. (achiziţie verificată) –
Foarte bună!
LIVIU DIACONU (achiziţie verificată) –
A sosit, am montat-o apoi tehnicianul a pornit-o. Totul ok iar cei de la cazanecentrale niste baieti ok.
Dănuț –
Cred că este cea mai bună variantă la ora actuală! Nota 10.
Doar cei de la Blacksea Supplies fac punerea în funcțiune și costă 230 dă lei.
Eu o folosesc în combinație cu un cazan pe lemne pe care îl am de vreo 5 ani. (în cazul în care se oprește gazul am rezervă pe lemne)
Recomand!
CONSTANTIN S. (achiziţie verificată) –
Am pus centrala in functiune. Deocamdata functioneaza ireprosabil.
DORIN ȘERBAN (achiziţie verificată) –
Centrala funcționează ireproșabil
alin –
este cea mai ok de pe piata la ora actuala..simpla si fiabila…
GABRIEL LUCIAN GORAN (achiziţie verificată) –
.
ALINA SANDU (achiziţie verificată) –
Cea mai buna investiție
CRISTIAN ALBU (achiziţie verificată) –
Am fost mulțumit.
dandragomir2002 (achiziţie verificată) –
Servicii excelente !!! comanda a ajuns in Brasov in 24h bine ambalata. Despre produs sper sa fie la fel de buna cu actuala immergas eolo star 24 montata in2007 (…fara nici un filtru !…) La urmatoarea pun toate accesoriile. Recomand CAZANE SI CENTRALE
DANIEL P. (achiziţie verificată) –
Este montată doar de 2 săptămâni, deci nu pot spune prea multe, dar până acuma funcționează excelent. Arată foarte fain, funcționează bine antiînghețul, face cald destul de rapid, este silențios.
LAURENTIU C. (achiziţie verificată) –
Sunt foarte multumit de serviciile firmei.
Deoarece dupa ce am facut comanda pentru centrala immergaz , am aflat ca nu e service in zona mea, si am sunat la firma sa o schimb cu alta Ariston . Am fost inteles si cei de la firma au fost foarte cooperativi si mi-au trimis alta centrala foarte repede.